-Services-

Development

We provide development management services, including site planning, entitlement assistance, leasing strategy and development identification for retail and mixed-use developments throughout the United States.

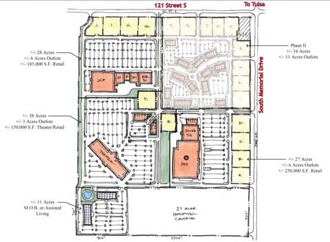
Site Planning

Good site planning requires finesse. It requires navigating the local government requirements and taking the needs of the tenants into consideration, but we understand that none of this matters if the final project isn’t usable and a pleasant place for the final users. We don’t just create places, we create positive experiences.

Architecture

With over 15 years of experience in architecture, we always have good design in mind from the onset of each project. We have experience in residential, commercial, and retail architecture. Complementing our expertise are our relationships with some of the best architecture firms in the country. We make sure to give each project the best resources at our disposal to make sure we never run low on top quality resources for your project.

 

Copyright 2012 JDD Partners, LLC